Klaipėdos r. sav., Trušelių k., Pakalvių g., mūrinis namas

Bendra informacija:
Plotas: 98 m²
Statybos metai: 2025 m.
Sklypo plotas: 5 a
Aukštų sk.: 1
Šildymas: aeroterminis
Vanduo: Miesto vandentiekis
Įrengimas: įrengtas
Namo numeris: 9

175 000 € (1 786 €/m²)

Parduodamas naujos statybos A++ klasės vieno aukšto namas Pakalvių g. 9, Trušeliuose (Klaipėdos r.).
Modernus 98,31 m² namas individualiame sklype, ramioje ir sparčiai augančioje gyvenvietėje. Patogus susisiekimas, asfaltuota gatvė, šalia naujakurių kvartalas.
Kainos:
• Su daline apdaila – 175 000 Eur
• Su pilna apdaila – 212 000 Eur

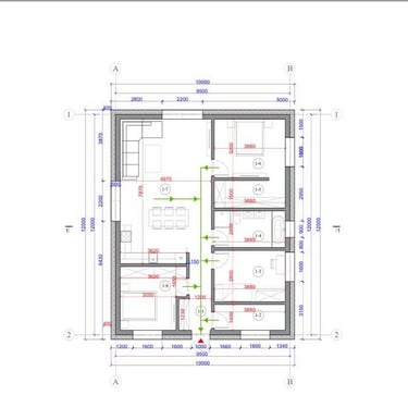
Patalpų eksplikacija (pagal projektą)
• Holas – 6,05 m²
• Virtuvė / svetainė – 38,30 m²
• Kambarys – 10,86 m²
• Kambarys – 11,55 m²
• Miegamasis – 12,41 m²
• Vonios kambarys – 5,95 m²
• Rubinė – 7,76 m²
• Sandėlis – 5,43 m²

Dalinė apdaila (175 000 Eur)
• Pilna fasado apdaila – dekoratyvinis tinkas
• Trinkelės
• Užsėta žolė, sutvarkyta aplinka
• Betonuotos grindys
• Gipso kartono pertvaros
• Tinkuotos sienos
• Išvedžiota rekuperacinė sistema
• Išvedžiota elektros instaliacija

Pilna apdaila (212 000 Eur)
• Fasadas – dekoratyvinis tinkas
• Trinkelės, tvarkinga aplinka
• Grindys – laminatas arba pasirinkta danga
• Sienos dažytos
• Įtempiamos lubos
• Šviestuvai, rozetės
• Šildymas – oras–vanduo
• Katilinės grindys – plytelės
• Vonios kambarys – pilnai išklijuotas plytelėmis
• Sumontuota vonia, dušas, WC, praustuvas
• Išvedžiota rekuperacinė sistema

Vieta ir privalumai
• 850 m iki Klaipėdos Sendvario „Saulės“ mokyklos–darželio
• Asfaltuota gatvė, gatvės apšvietimas
• Miesto vandentiekis, miesto nuotekos
• Elektra – 7 kW
• Uždara kvartalo teritorija su užkardu
• Galimybė koreguoti vidaus planą
• Galimybė statyti stoginę/garažą sklype
• Patogus privažiavimas iš Pakalvių ir Gertlaukių g.

Susisiekime:
Šiuo metu dar galite rezervuoti namą ir pritaikyti apdailos sprendimus pagal savo poreikius. Sekite Facebook paskyroje - Intrada.
Intrada – kur namai kuriami su mintimi apie Jus.
Pateikdami šią formą, jūs sutinkate gauti komunikaciją iš INTRADA